• Home
  • Home
  • Gallery
  • Our Team
  • Services
  • Client Login
  • Contact Us
  • Blog

Project Name

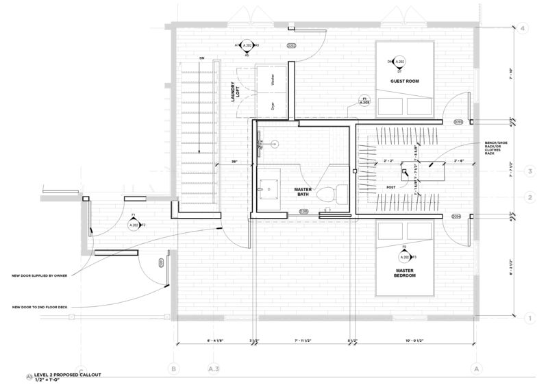
Revered Garage

Scope

Design and renovate garage into habitable space, add stairs to the existing 2nd floor above, and improve the layout of the rooms above

Challenges

Reducing the cold sink effect of the garage slab

Phase

Under construction

Final Photos

Process Photos