• Home
  • Home
  • Gallery
  • Our Team
  • Services
  • Client Login
  • Contact Us
  • Blog

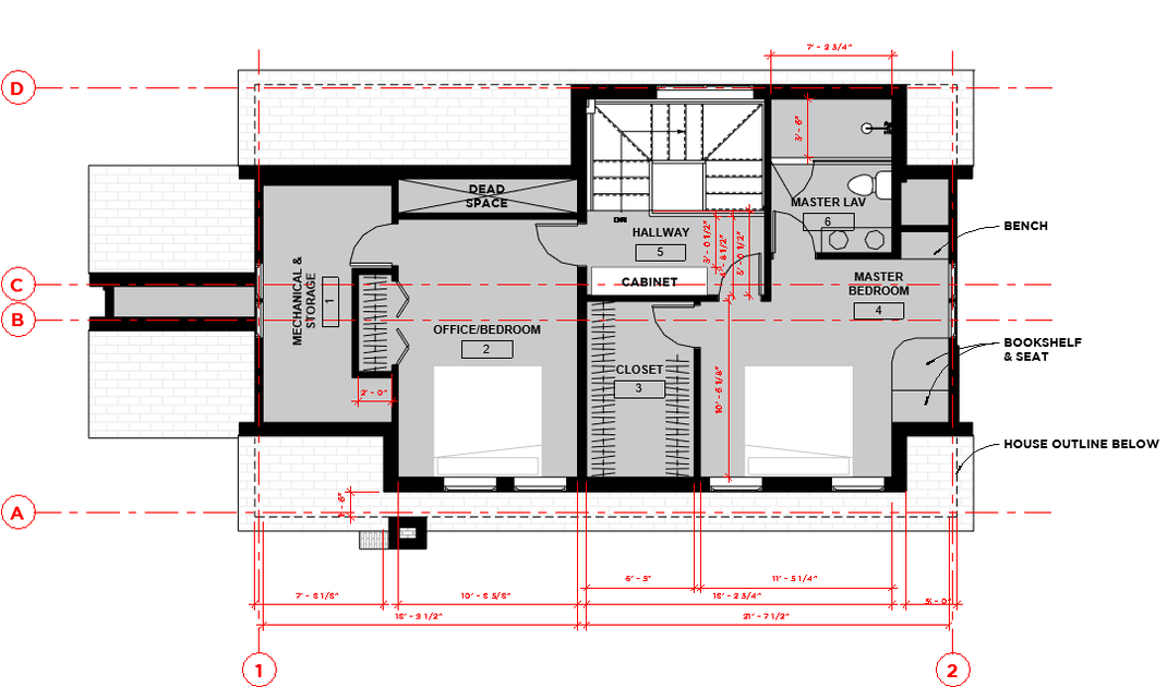
Project Name

RDRR

Scope

Design|Build: Increase the living space of the half story to this bungalow

Challenges

None to date

Phase

Schematic Design

Final Photos

Process Photos

3D Model