• Home
  • Home
  • Gallery
  • Our Team
  • Services
  • Client Login
  • Contact Us
  • Blog

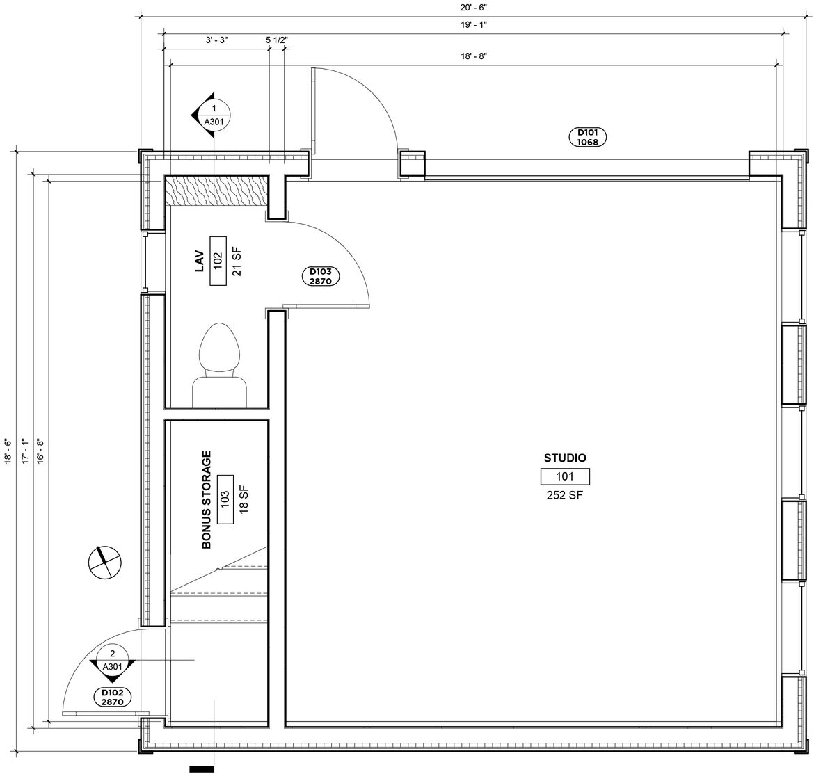
Project Name

BYCH

Scope

Design and build an accessory building with an apartment above an art studio

Challenges

Balancing the proximity of the existing house with the tight constraints of the 1br studio apartment

Phase

Schematic Design

Final Photos

Process Photos

3D Model